Вернуться назад

«Семейный 128»

Стоимость дома под ключ
7 900 000 ₽
128 м²
Площадь дома
2 этажа
2 этажа, 4 спальни, 2 санузла
8,0 × 8,0 м
Габариты дома + терраса
Оставить заявку
Проект FM‑107

О проекте

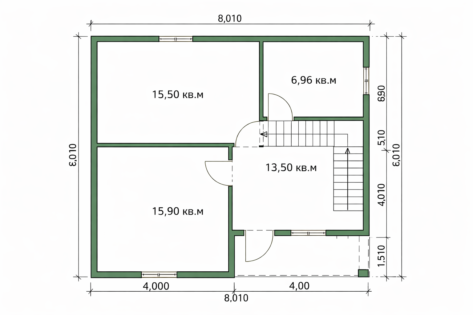
Это проект одноэтажного дома для семьи из 4–5 человек. Простая форма здания и двускатная крыша снижают затраты на строительство. В дом входит прихожая с местом под шкаф, далее — просторная гостиная, объединённая с кухней и столовой, отдельные спальни и санузлы.

Планировку можно адаптировать под ваш участок: изменить расположение окон, добавить террасу или увеличить площадь отдельных помещений.

Прозрачный расчёт сметы

Из чего складывается стоимость дома?

На цену влияют фундамент, каркас, утепление, кровля, инженерия и отделка. Ниже — подробно по каждому пункту, чтобы вы понимали, за что платите.

Подробнее

Вид и глубина фундамента зависят от геологии участка и веса дома. В стоимость входит разметка, земляные работы, арматура, бетон, опалубка и гидроизоляция.

Лаги, утепление, черновой и чистовой настил. Толщина пирога подбирается под регион и тип эксплуатации дома.

Сухая строганная доска, стойки, обвязка, ригели и усиливающие элементы. От сечения каркаса зависит жёсткость и долговечность конструкции.

Минеральная вата или другой утеплитель нужной толщины. Правильный монтаж без мостиков холода даёт тёплый дом с низкими расходами на отопление.

Энергоэффективные стеклопакеты, фурнитура, монтажные работы и утепление откосов. От этого зависит комфорт и отсутствие продуваний.

Саморезы, шпильки, уголки, гвозди и металлоконнекторы. Качественный крепёж — залог жёсткости каркаса и безопасности конструкции.

Стропильная система, кровельный материал, водосточка, фасадная отделка и террасные конструкции. Здесь формируется внешний вид дома и его защита от осадков.

Мембраны и плёнки, которые защищают утеплитель от влаги и продувания. От правильного монтажа зависит срок службы всего пирога стены и крыши.

```html
Дом с современной планировкой

Хотите изменить планировку?

Это просто: назначим встречу с нашим архитектором, обсудим ваши идеи и особенности участка — на основе этого подготовим несколько вариантов индивидуальной планировки.

Обсудить проект
```
Сроки строительства под ключ

Средний срок строительства дома — 3 месяца

Работы ведём по чёткому графику. После каждого этапа вы получаете фото‑отчёт, закрывающие документы и понимаете, что происходит на объекте прямо сейчас.

Обсудить проект

Этапы по времени ~ 3 месяца

Подготовка участка, разбивка осей, устройство фундамента и подведение временных коммуникаций. Утверждаем график дальнейших работ и фиксируем промежуточный отчёт.

Монтаж каркаса, межэтажных перекрытий, стропильной системы. Формируем объём дома, подготавливаем проёмы под окна и двери.

Утепление, кровля, установка окон и входных дверей, монтаж инженерных сетей. Дом становится тёплым контуром, можно согласовывать чистовые материалы.

Чистовая отделка, монтаж сантехники и электрики, уборка объекта. Совместная приёмка, устранение мелких замечаний и передача ключей.

Давайте обсудим ваши запросы
и примерный бюджет
Получите бесплатную консультацию и оценочную стоимость. Оставьте заявку — свяжемся с вами, уточним задачи и предложим варианты.

Контакты

Нужна консультация по строительству или расчёт стоимости? Свяжитесь с нами удобным способом.

Офис и шоурум
г. Нижний Новгород, ул. Станиславского, 7А,этаж 3, офис 314
Ежедневно 10:00–19:00, по записи
Онлайн‑консультация

Пишите в мессенджеры — отвечаем быстро, отправим планировки и смету.

Как нас найти

Офис и шоурум в Нижнем Новгороде. Приезжайте на консультацию, чтобы обсудить проект и посмотреть решения вживую.

Офис и шоурум

Адрес: ул. Станиславского, 7А,
Нижний Новгород, этаж 3, офис 314

Открыть в Яндекс.Картах
Узнать подробнее
или позвоните нам
+79049033299
Made on
Tilda